物件情報
賃貸物件 貸家
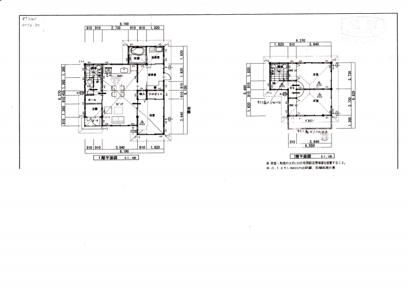
一戸建貸家(光の森2474-80 2階建て)

【キーワード】
エアコンオール電化P2台込み広いお風呂照明付き
賃料:85,000円
間取り:3SLDK
所在地:天草市本渡町本戸馬場2474-80
引渡し:
| 敷金 | |
|---|---|
| 礼金 | 2ヵ月 |
| 建築年 | 2015年6月 |
| 種別 | 貸家 |
| 構造 | 木造2階建て |
| 号室 | |
| 世帯数 | |
| 駐車場 | 3台可 |
| 態様 | 仲介(仲介料:93,500円) |
| 設備 | ・オール電化(IH)・エアコン・舗装無し庭付き |
| 備考 | ・1階:LDK14 和6 2階:洋6 洋6(89.43㎡)・土地61坪 ・保証会社加入要 ※室内外ともにペット飼育不可です。 |
| 入居までの流れ | 入居までの流れと入居までに用意していただくものについては次のページをご覧ください→ 入居までの流れページ |
| 初期費用の目安 | 411,000円【礼金170,000円、仲介手数料93,500円、当月分家賃85,000円(1日入居の場合)、保証料42,500円、保険20,000円】 |
ここに地図が表示されます
- お問い合わせ
- 電話番号:0969-22-1553
- お問い合わせフォームはこちらアクセスはこちら














