物件情報
賃貸物件 テナント
Barclays栄町(店舗)

【キーワード】
エアコン仲介料不要照明付き
賃料:100,000円
間取り:
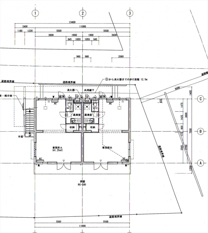
所在地:天草市栄町2-21
引渡し:
| 敷金 | 無 |
|---|---|
| 礼金 | 3か月 |
| 建築年 | 2019年1月 |
| 種別 | 事務所 |
| 構造 | 鉄筋コンクリート造り4階建て |
| 号室 | 1‐A号室 |
| 世帯数 | 8世帯(店舗2・住居6) |
| 駐車場 | 別(5,500円/台) |
| 態様 | 貸主 |
| 設備 | ・エアコン2台・照明付き ☆都市ガス |
| 備考 | ・41.25㎡ ・家賃110,000円/月(家賃100,000円+消費税10,000円)・保証会社加入要:110,000円(契約時) ・仲介料不要 ・駐車場:5,500円/台 ・町内会費:500円/月・1階:店舗2世帯 2~4階:住居6世帯(1LDK) |
| 初期費用の目安 | 520,000円【内訳:礼金300,000円、当月分家賃110,000円、保証料110,000円】 |
ここに地図が表示されます
- お問い合わせ
- 電話番号:0969-22-1553
- お問い合わせフォームはこちらアクセスはこちら
















